






Ahornvej 8, 2970 Hørsholm
1.330 kvm. grund med garagebygning på ca. 430 kvm.
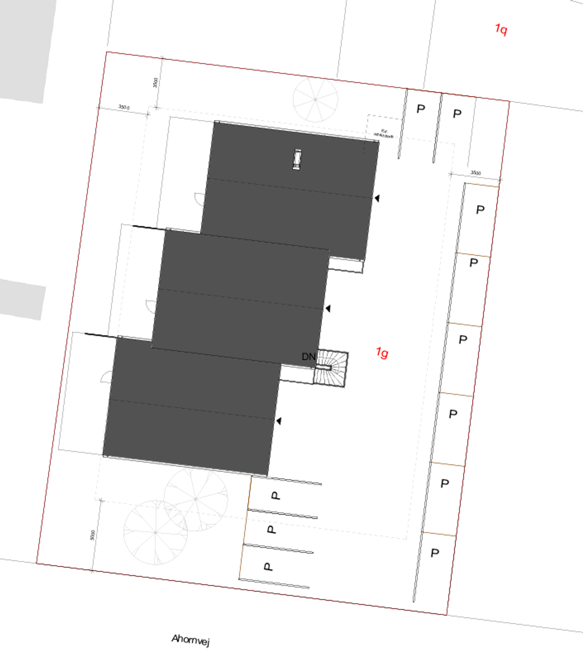
Regulær grund på 1.330 kvm. med garagebygning på ca. 430 kvm. Ejendommen kan bebygges jf. Lokalplan 68 med 25% til åben-lav bebyggelse og 40% al anden bebyggelse (f.eks. klyngehuse).
Den på grunden værende garagebygning er pt. udlejet, men vil blive fri for lejer ved ejerskifte.
Regulær grund på 1.330 kvm. med garagebygning på ca. 430 kvm. Ejendommen kan bebygges jf. Lokalplan 68 med 25% til åben-lav bebyggelse og 40% al anden bebyggelse (f.eks. klyngehuse).
Den på grunden værende garagebygning er pt. udlejet, men vil blive fri for lejer ved ejerskifte.
Økonomi
Pris
7.495.000 kr.Tilslutningsafgifter betalt
NejUdbetaling
375.000 kr.Brutto (ex. ejerudgifter)
43.516 kr.Netto (ex. ejerudgifter)
34.960 kr.Ejerudgifter pr. md.
1.685 kr.Henning Reinholdt
Ansvarlig indehaver - Ejendomsmægler og valuar, MDE - Erfaring siden 1977. Henning har solgt et utal af boliger og erhvervsejendomme og besidder en enorm viden og et meget stort netværk.